Прокладываем связующую трассу
Для этого нужно просверлить в стене отверстие. Что касается его диаметра, то он обычно составляет от шестидесяти до семидесяти миллиметров. Получите за это удар. Также пригодится дрель, и если вы хотите скрыть шоссе, можете его заточить. Также следует знать, что линию следует располагать под небольшим углом. Его значение не должно быть меньше двух градусов. Это позволяет воде нормально течь через трубку.

Также стоит отметить, что указанные патрубки, выполненные из меди, а также выхлопная труба редко входят в комплектацию кондиционера. Поэтому вам может потребоваться приобрести их отдельно. Для обустройства водостока следует использовать только специализированные армированные трубы. Каждый из элементов прокладываемой соединительной линии необходимо стянуть нейлоновыми стяжками. Затем протаскивают через стену (через специально проделанное отверстие). Также они могут переходить в паз, который обычно выполняется в роли пластикового короба.
Также следует помнить, что медные трубы следует делать с запасом в один метр. При их резке следует помнить о нескольких ключевых моментах.
- Так, например, их резка возможна только с помощью специально предназначенного для этих целей трубореза.
- Если вы решили использовать для этого ножовку, срочно приведите ее в действие и забудьте об этой задумке. Иначе в трубу попадет хоть какая-то медная стружка. Даже самая маленькая сумма недопустима.
- Помимо прочего, следует помнить о некоторых простых мерах предосторожности.
Каким может быть расстояние между наружным и внутренним блоками кондиционера
Наружный и внутренний блоки кондиционера размещены на разном расстоянии друг от друга. От чего зависит этот параметр и насколько он критичен для климатических установок?
Как работает кондиционер
В кондиционере хладагент (фреон) циркулирует по замкнутой системе. Непрерывный процесс его перехода из одного агрегатного состояния в другое обеспечивает охлаждение воздуха в помещении. В газообразном состоянии фреон поглощает тепло, а в жидком — излучает его. В этом случае конденсация хладагента происходит при высоких давлениях и температурах, а кипение — при низких.

Процесс выглядит следующим образом.
В испарителе хладагент находится в парообразном состоянии. Он всасывается компрессором (секция 1-1) и сжимается до 15-25 атмосфер. В результате температура пара повышается до + 70 ÷ 90 ° C.
Из компрессора горячий пар направляется в конденсатор (секция 2-2), где охлаждается до температуры на 10 ÷ 20 ° C выше температуры атмосферного воздуха, конденсируется и превращается в жидкость.
Конденсатор находится в наружном блоке, его размер подбирается таким образом, чтобы весь поступающий пар успевал перейти в жидкость.
Из конденсатора жидкий хладагент под высоким давлением и температурой поступает в регулятор потока. Здесь резко падает давление, небольшая часть жидкости испаряется, остальная часть попадает в испаритель (точка 4), где нагревается от воздуха в помещении, где установлен внутренний блок. Жидкость закипает и переходит в парообразное состояние. Затем процесс повторяется.
Что будет в кондиционере, если длина фреоновой магистрали будет слишком короткой или, наоборот, слишком длинной?
Короткая протяженность магистрали
Производители не всегда указывают минимально допустимую длину фреоновой магистрали, но опытные установщики рекомендуют делать ее не менее трех метров.
Дело в том, что при меньшей длине пути фреон в испарителе может не успеть полностью перейти в газообразное состояние. Он будет продолжать кипеть в основной трубе, в жидком состоянии попадет в компрессор, что приведет к гидродинамическому удару. В результате клапаны и другие части компрессора сломаются.
Против автомагистралей короче трех метров есть несколько аргументов:
- компрессор выйдет из строя из-за гидроудара;
- колебания от наружного блока к внутреннему блоку могут передаваться;
- неприятный шумовой эффект из-за бульканья фреоновой жидкости в магистрали.
Длинная протяженность магистрали
Производители указывают производительность своих кондиционеров и максимально допустимую длину фреоновой магистрали.
Эти параметры тесно связаны: чем выше холодопроизводительность, тем длиннее может быть трек.
Так, для моделей мощностью 2,5 кВт максимальная длина линии не превышает 20 м, а для полупромышленных кондиционеров мощностью 8 кВт она может достигать 50 м.
При этом есть важная деталь: показатели эффективности указывают оптимальную длину трассы — 7,5 м. С увеличением длины трассы цифры меняются.
Примером снижения продуктивности могут служить следующие показатели:
|
Длина линии, м |
Снижение производительности в% для кондиционеров с разными значениями холодопроизводительности | |||||
| 4 кВт | 5 кВт | 6 кВт | 10 кВт | 12,5 кВт | 14 кВт | |
| 7,5 | 0 | 0 | 0 | 0 | 0 | 0 |
| 10 | 0,3 | 0,4 | 0,5 | 0,9 | 1.4 | 1.5 |
| 15 | 0,9 | 1.1 | 1.5 | 2.2 | 3.2 | 3,4 |
| ветры | 1.5 | 1.9 | 2.3 | 3,6 | 5.0 | 5,4 |
| 25 | 2.0 | 2,7 | 3.3 | 4.9 | 6,8 | 7.3 |
| тридцать | 2,6 | 3,4 | 4.2 | 6.3 | 8,6 | 9,3 |
| 35 год | 3.2 | 4.2 | 5.2 | 7,6 | 10,4 | 11.2 |
| 40 | — | — | — | 9.0 | 12.2 | 13,2 |
| 45 | — | — | — | 10,3 | 14.0 | 15.1 |
| 50 | — | — | — | 11,7 | 15,8 | 17,1 |
| 55 | — | — | — | 13,0 | 17,6 | 19.0 |
В закрытой системе кондиционирования с увеличением длины магистрали давление в газовых и жидкостных трубопроводах снижается. И оба эти явления имеют отрицательный эффект.
В первом случае давление на входе в компрессор снижается. В результате он улавливает охлаждающую жидкость с меньшей плотностью и снижает ее расход. На выходе компрессор также создает более низкое давление, в результате чего температура конденсации понижается, затем температура испарения понижается и трубопровод замерзает. Это может вызвать перегрев и отказ компрессора.
Читайте также: Обзор сплит-системы Ballu bsvp-07hn1: особенности, характеристики и сравнение с основными конкурентами
При падении давления в жидкостной магистрали в теплоносителе доля газообразного фреона увеличивается. И чем его больше, тем быстрее движется теплоноситель по линии. И чем выше скорость движения фреона в магистрали, тем больше потеря давления. В результате процесс нарастает лавинообразно. Это можно увидеть на графике ниже.

Как видите, связь отнюдь не линейная. Так, при длине магистрали 15 м потеря давления составит 400 Па. Если длину пути увеличить вдвое — до 30 м, потеря давления увеличится в 7 раз — до 2800 Па. Следовательно, кондиционер может не выжить при увеличении длины строки.
Как можно нивелировать последствия удлинения магистрали
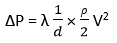
На практике предстоит решить важную задачу: уменьшить перепады давления в трубах. Для этого необходимо увеличить диаметр труб газопровода, чтобы снизить скорость движения теплоносителя в них. Для расчетов можно использовать формулу:
![]()
- где — перепад давления;
- — коэффициент гидравлического трения;
- d — диаметр трубы;
- плотность хладагента;
- V — скорость теплоносителя.
Из формулы видно, что уменьшив вдвое скорость движения фреона, мы уменьшим потерю давления в 4 раза, а значит, мы можем на столько же увеличить длину магистрали. На практике цифры немного скромнее и уменьшение скорости фреона вдвое приводит примерно к такому же снижению перепадов давления.
увеличивать диаметр газопроводов можно только на горизонтальных участках.
Изменение производительности кондиционеров при изменении диаметра трубопровода можно изобразить на следующем примере:
|
Холодопроизводительность, кВт |
Ø трубопровода, мм | Разброс производительности в% для разной длины туловища | ||||||||||||||
| 7,5 | 10 | 15 | ветры | 25 | тридцать | 35 год | 40 | 45 | 50 | 55 | 60 | 65 | 70 | 75 | ||
| 200 | 22,22 (7/8 дюйма″) | 0 | — 0,3 | — 0,9 | — 1,6 | — 2,2 | — 2,9 | — 3,5 | — | — | — | — | — | — | — | — |
| 250 | 0 | — 0,5 | — 1,5 | — 2,5 | — 3,5 | — 4,6 | — 5,6 | — | — | — | — | — | — | — | — | |
| 200 | 25,4 (1″) | + 0,7 | + 0,5 | + 0,2 | — 0,2 | — 0,5 | — 0,9 | — 1,2 | — 1,6 | — 1,9 | — 2,3 | — 2,6 | — 3,0 | — 3,3 | — 3,7 | — 4,0 |
| 250 | + 1,2 | + 0,8 | + 0,2 | — 0,4 | — 1.0 | — 1,6 | — 2,2 | — 2,8 | — 3,4 | — 4,0 | — 4,7 | — 5,3 | — 5,9 | — 6,5 | — 7,1 | |
| 200 | 28,58 | + 1.0 | + 0,9 | + 0,7 | + 0,5 | + 0,3 | + 0,1 | — 0,1 | — 0,3 | — 0,5 | — 0,7 | — 0,9 | — 1,1 | — 1,3 | — 1,5 | — 1,7 |
| 250 | + 1,6 | +1,5 | +1,1 | + 0,8 | + 0,4 | + 0,1 | — 0,3 | — 0,6 | — 1.0 | — 1,3 | — 1,7 | — 2,0 | — 2,4 | — 2,7 | — 3,1 |
Принцип работы сплит-системы
Для начала разберемся, как устроена домашняя сплит-система — так будет проще понять, почему важны нюансы монтажа.
Как известно, традиционный домашний кондиционер состоит из двух блоков: один устанавливается в комнате, второй закрепляется на улице, снаружи стены, на чердаке или где-то еще..

Между внутренним и наружным блоками есть линия, по которой циркулирует хладагент. Это замкнутая система из медных трубок, заполненных фреоном
Процесс охлаждения воздуха в помещении происходит за счет непрерывного движения фреона и его перехода из газообразного состояния в жидкое и затем наоборот. Когда хладагент находится в газообразном состоянии, он поглощает тепло и выделяет его в жидкой фазе.
Процесс конденсации, то есть переход в жидкое агрегатное состояние, происходит при высоких температуре и давлении, а кипение, при котором газ испаряется, характеризуется низкими значениями.

Схема, показывающая циркуляцию хладагента в замкнутом контуре между двумя модулями: испаритель расположен в корпусе настенного блока, а конденсатор — внутри наружного блока
Процесс теплопередачи выглядит следующим образом. Компрессор забирает пар из испарителя (зона 1-1), сжимает его и передает в конденсатор (зона 2-2). В этом случае хладагент сжимается до 20-25 атм. И его температура повышается до +90 ° С. Там происходит охлаждение и конденсация.
Из кондиционера (3) хладагент, уже находящийся в жидком состоянии, возвращается в испаритель (4) через регулятор потока в условиях низкого давления. Воздух в помещении нагревает жидкость, происходит закипание и переход в пар. И так процесс повторяется бесконечно.
Переход хладагента из одного агрегатного состояния в другое происходит как в теплообменниках, так и в трубах
Чтобы процесс начался и закончился вовремя, требуется определенная длина линии, поэтому важно учитывать требования к длине, установленные разработчиками оборудования. Мы разобрались с устройством и принципом работы типового кондиционера, а теперь перейдем к правилам и нормам установки его блоков
Техническое задание на монтаж кондиционера
Прежде чем приступить к монтажу климатического оборудования, проектировщик составляет техническое задание на установку кондиционера, которое включает:
- описание объекта со всеми архитектурными особенностями и его точный адрес;
- требования к установке кондиционеров с учетом этих характеристик;
- описание необходимого оборудования и материалов.
Наиболее объемной является статья, включающая требования к установке систем кондиционирования, то есть полное пошаговое описание:
- просверлить отверстия в стенах;
- крепление к ним кронштейнов и блоков;
- прокладка фреоновой магистрали;
- подключение соединительных кабелей и силового кабеля;
- установка дренажной трубы;
- процесс опрессовки и вакуумного испытания холодильного контура;
- установка автоматических выключателей и подключение к существующей сети.
Большинство компаний не составляют техзадание на установку кондиционера, так как сотрудник компании выезжает на объект и запускает примерный план для последующей установки. В этом случае требования по установке кондиционера не будут проблемой, поэтому большинство компаний работают по упрощенной схеме, ведь у опытных техников вряд ли возникнут трудности со стандартной установкой настенной сплит-системы.










Если поступает заказ на большие объемы, в котором необходимо провести работы по установке нескольких единиц оборудования в крупном сооружении, проектировщику не избежать составления технического задания на установку кондиционеров. В этом случае каждый шаг будет подробно описан для каждого устройства отдельно.
Когда оформлена документация, приступают к выполнению своих обязательств по договору с заказчиком, то есть непосредственно при установке выбранной системы кондиционирования на объекте.
Выбор места для внутреннего блока и его монтаж

Внутренний блок монтируется на специальной панели (обычно входит в комплект). При выборе места крепления необходимо учитывать один фактор — необходимо гарантировать минимальную длину пути (минимальное расстояние от уже установленного наружного блока) — этот критерий гарантирует быстрый отвод конденсата и жидкости, а также более короткий путь при 6 м предусмотрен автоматический отвод жидкости.
Также очень важен вопрос, на какой высоте вешать кондиционер (его внутреннюю часть): при правильной установке, для обеспечения нормальной циркуляции воздуха минимально необходимая высота составляет 1,5 м от уровня пола, вешать тоже неправильно кондиционер возле потолка (расстояние не менее 15 см), стен или других препятствий (необходимое расстояние 30 см).
Стандартная комплектация
После покупки кондиционера потребитель получает:
- 2 блока — внутренний и внешний;
- Фильтры;
- Пульт дистанционного управления (батарейки в комплект не входят);
- Медная труба (наличие такой детали зависит от производителя, так как не все включают ее в комплект);
- Сливной насос (в дорогих моделях);
- Гарантийный талон и паспорт.
Отсутствие необходимых для монтажа сплит-системы элементов связано с тем, что условия монтажа разные и существенно отличаются. Невозможно спрогнозировать длину кабеля, дренажной трубы, всей трассы, а также место установки и способ крепления.
Некоторые компании также оснащают системы приспособлениями для зимних работ. Это:
- Масляный нагреватель. Он предотвращает загустевание жидкости и тем самым обеспечивает надежную смазку двигателя. В противном случае масло не потечет в компрессор и будет работать всухую. Такая ситуация приводит к быстрому износу разделенных систем, снижению эффективности оборудования.
- Нагреватель выхлопной трубы. Нагрейте конденсат, не допуская его замерзания и засорения трубы.
- Регулирующее устройство для контроля давления конденсации. Проверяет работу вентилятора и не покрывает наружный блок коркой льда.
Купите зимний комплект, если вы планируете использовать оборудование круглый год.
Основные этапы
После завершения всех подготовительных работ дорожка прокладывается. Он состоит из двух витых трубок, которые действуют как изоляция, и кабеля, соединяющего внутренний и внешний блоки.
Диаметр труб поможет выбрать производителя. Рекомендуемые размеры приведены в инструкции к сплит-системе. При малых объемах используются трубы 1/4 и 3/8 дюйма.
Шланг перекручен, его нужно размотать. Не наступайте на него ногами, так как это вызовет вмятину. Если не исправить, в этом месте возможны подтекания и застой воды. Все стыки необходимо проклеить утеплителем.
Следующим шагом будет размещение кабеля в гофрированной трубе. Чаще всего используется кабель 4х1,5 ПВС. Складываем гофру вместе с трубами, фиксируя все хомутами
важно не переборщить и не перетянуть конструкцию.
Готовую дорожку вставляем в сделанные ранее пазы и скрепляем специальными стяжками в просверленных отверстиях. Все действия выполняются аккуратно, с соблюдением всех вышеперечисленных норм .. Вывод трассы на улицу должен производиться с запасом
Это необходимо для того, чтобы в случае неправильного подключения или изменения положения наружного блока не нужно было добавлять трубы или кабели, так как разные разъемы снижают надежность системы
Съезд с трассы на дорогу должен осуществляться с запасом. Таким образом, в случае неправильного подключения или изменения положения наружного блока нет необходимости добавлять трубы или кабели, потому что различные разъемы снижают надежность системы.
Последовательность сборки и установки
Самостоятельно собрать и установить кондиционер — задача не из легких, но вполне выполнимая, если вы все досконально разбираетесь и не забываете читать инструкцию, чтобы в дальнейшем у вас не возникло трудностей. В будущем это поможет вам быть уверенным, что оборудование работает исправно и вы все сделали правильно.
Чтобы не возникло трудностей с установкой агрегата, попробуйте перед тем, как приступить к установке, его зацепить за пластину.
Короткая протяженность магистрали
Производители не всегда указывают минимально допустимую длину фреоновой магистрали, но опытные установщики рекомендуют делать ее не менее трех метров.
Дело в том, что при меньшей длине пути фреон в испарителе может не успеть полностью перейти в газообразное состояние. Он будет продолжать кипеть в основной трубе, в жидком состоянии попадет в компрессор, что приведет к гидродинамическому удару. В результате клапаны и другие части компрессора сломаются.
Против автомагистралей короче трех метров есть несколько аргументов:
- компрессор выйдет из строя из-за гидроудара;
- колебания от наружного блока к внутреннему блоку могут передаваться;
- неприятный шумовой эффект из-за бульканья фреоновой жидкости в магистрали.
Подготовительные работы
На стене при помощи перфоратора выделите карниз. Глубину следует выбирать таким образом, чтобы легко скрыть будущую магистраль.
В большинстве случаев медная труба входит в блок с левой стороны, а выхлопная труба входит как с левой, так и с правой стороны. Это зависит от модели и марки вашего кондиционера.
Обязательным условием является прокладка дренажной системы на склоне. Не допускайте наличия горизонтальных или наклонных участков по направлению к кондиционеру. Первые 20-30 сантиметров рекомендуется укладывать с уклоном максимально доступного значения. Это сделано для того, чтобы в будущем можно было отказаться от внутреннего блока. После этого уклон должен составлять 1 см на метр трубы.
Подготовив в стене все необходимые каналы, нужно просверлить отверстие для выхода шоссе на улицу. Идеальным решением будет просверливание отверстий большего размера на улице.

Пример расчетов прокладки дорожки
Раскатка труб и укладка в штробу
Перед установкой трубы разматывают по прямой
Здесь важно не наступить на нее по ошибке, потому что медь — мягкий материал и легко скручивается. Обогреватели ставятся на обе трубы, диаметр которых зависит от мощности оборудования. На соединительный кабель наносится гофра, все детали собираются и перематываются липкой лентой
рядом с внутренним блоком необходимо оставить подводящую трубу длиной 50 см. Рядом с наружным блоком 1 — 1,5 метра
На соединительный кабель наносится гофра, все детали собираются и перематываются липкой лентой. Рядом с внутренним блоком необходимо оставить подводящую трубу длиной 50 см. Рядом с наружным блоком 1 — 1,5 метра.










Далее рейка укладывается в желоб и фиксируется монтажной лентой и дюбелями
важно, чтобы балка не выступала за стену — это создаст проблемы при оштукатуривании
Опрессовка трассы
Обжим требуется по соображениям безопасности. Если рабочие повреждают гусеницу, герметичная система издает громкий звук. На этом этапе возможно восстановление трассы без поломки оборудования. Также можно установить манометр для измерения давления.
Чистка трассы кондиционера
В медные трубы не должна попадать влага, так как это нарушает химические характеристики фреона, в котором образуются едкие соединения. Жидкость может повредить кондиционер и быстро испортится. Для очистки используется специальное оборудование, удаляющее влажный воздух, после чего концы труб плотно закрываются заглушками.
Закрытие штробы
Выполнив все работы, можно засыпать бороздки строительной смесью. Если коммуникации были проложены по потолку, можно продолжить ремонт и заделать потолок гипсокартоном. После ее покрытия желательно сфотографировать положение трассы с указанием расстояния от стен, от пола, чтобы в случае повреждения стену можно было до минимума разобрать.
Когда окончательный ремонт завершен, остается вызвать мастеров или самостоятельно установить внешнее и внутреннее оборудование, а затем подключить его и проверить исправность.
В солидных компаниях в стоимость работ входит вывоз мусора после прокладки трассы. Для этого у установщиков есть пылесосы со специальными мешками для пыли. При этом вы можете заключить договор на сервисное обслуживание своей установки, чтобы не чистить наружный блок, рискуя своей жизнью. Услуги альпинистского здания очень дороги, и если кондиционер находится в месте, где нет пыли и тополевого ворса, следует проводить тщательную чистку не реже одного раза в год.
Оборудование и материалы

Для самостоятельной работы пользователь должен быть соответствующим образом экипирован. Некоторые запчасти идут в комплекте на момент покупки, но тогда вам нужно будет приобрести необходимые нестандартные инструменты, аксессуары и оборудование самостоятельно. Правила установки кондиционера обязывают при установке использовать только сертифицированные материалы.

Материалы, входящие в комплект кондиционера:
- Кондиционер с охлаждающими соединениями между двумя агрегатами, обычно длиной 10 м. Если агрегаты будут устанавливаться дальше, необходимо будет заказать соединительную трубу необходимой длины. Специалисты советуют избегать использования нескольких частей соединенных труб, которые увеличивают риск утечки.
- Шланг для слива конденсата, длина которого обычно составляет до 30 м. При установке он должен иметь минимальный уклон 1 см, если такой возможности нет, вам обязательно понадобится мини-насос.
- Винты и заглушки не входят в комплект поставки кондиционера. Перед установкой кондиционера дома их выбирают исходя из рекомендаций производителя.
- Электрические кабели для подключения к системе защиты в виде автоматических выключателей.
- Отделочные материалы: раствор, краска, чтобы скрыть дыры, оставшиеся при установке.
- Изоляционные материалы для труб, обеспечивающие оптимальную производительность и экономию энергии.
- Инструменты, необходимые для установки.
Подключение системы кондиционирования

- точка подключения подключается непосредственно к распределительной коробке. В этой ситуации вы обойдетесь без розетки и вилки. Но при таком способе подключения следует учитывать, что используемая электропроводка должна выдерживать нагрузку и одновременно работать со всеми подключенными к ней бытовыми приборами. Панель также оснащена системой автоматического отключения в случае перегрузки;
- если кондиционер устанавливается при проведении общих ремонтных работ, то при установке часто используется закрытая конструкция. Оборудован специальным каналом в стене. Прокладывает кабель. Один конец подключается к распределительному щиту, а другой крепится к выходу розетки. На финальном этапе канал закрывается. При этом не портится интерьер помещения. На электропроводку не влияют негативные внешние факторы;
- установку розетки для кондиционера можно производить открытым способом. Такой способ используют, если ремонт уже завершен и жители не хотят еще больше портить стену. Один конец жгута подсоединяется к распределительной коробке. Одна розетка подключена к другому концу. Кабель располагается на поверхности настенного покрытия. Он помещен в декоративную коробку.
Советы и рекомендации
- Будет лучше, если перед прокладкой в желобе коммуникации будут помещены в отдельную гофрированную трубу. При необходимости из него можно легко снять отдельный элемент для ремонта или замены. Это так же легко реализовать.
- Избегайте поворачивать канавку под прямым углом. В таком крутом изгибе может произойти закупорка или перекручивание. Лучше сделать два угла по сорок пять градусов.
- Не забудьте разделить электрический кабель гофрой. Во-первых, этого требуют стандартные «Правила электромонтажа», а во-вторых, так вам будет безопаснее.
- Постарайтесь сделать его как можно короче — холодопроизводительность будет больше. В паспорте на кондиционер указана длина 15 метров и заявлена определенная холодопроизводительность. Некоторые производители могут заявить, что максимальная длина линии кондиционера их марки составляет 25 м или 30, а также мощностью 7 кВт. Не обманывайте себя: на 15 метрах будет 7 кВт, что является нормой при измерении параметров прибора.
- Для резки бетона можно использовать комплекс болгарка-дрель. Но лучше купить, одолжить или арендовать резак. От перфоратора останутся рваные края, бетон рассыпется и отслоится, а пыль будет неизмеримо подниматься. Вы можете подключить к настенному трекеру промышленный или бытовой пылесос, и грязи будет меньше. Главное не забывать регулярно чистить мешок пылесоса во время работы.
Основные требования и правила монтажа кондиционеров
Если система содержит больше (2–4) внутренних блоков, она называется мультисплит-системой. Наружный блок действует как конденсатор, а внутренний блок действует как испаритель. Наружный и внутренний блоки соединены линией, которая включает электрические кабели и трубы, по которым циркулирует фреон.
Еще одна важная деталь — сливной шланг, который подключается к наружному блоку. Благодаря ему удаляется конденсированная влага. В требованиях и правилах указано, что дренажная труба должна быть подключена к канализационной системе, чтобы конденсат не стекал по фасаду.










Что касается конструкции кондиционера сплит-системы (формы и цвета), то каждая модель индивидуальна, внутреннее наполнение и дизайн у всех одинаковы. Внешний вид и дизайн никак не влияют на принцип установки. Для установки необходимо выбрать правильное место установки
Именно поэтому, выбирая его для любого кондиционера, важно учитывать:
- Вес снаружи изделия.
- Сторона горизонта, на которой будет размещен блок.
- Из чего сделаны стены фасада дома и их конструкция.
- Наличие места для проведения профилактических мероприятий.
- Способен защитить конденсатор от осадков и образования льда.
Теперь о мощности продукта. При выборе мощности учитывается общее тепловыделение в квартире или доме. Эти показатели зависят от таких факторов:
Расположение здания по обе стороны горизонта.
Количество членов семьи в доме.
Количество электроприборов и их мощность.
Будь осторожен! Тепло выделяется при работе электроприборов. Это компьютеры, микроволновые печи, телевизоры, утюги и т.д.
а также. Чем больше техники, тем теплее будет в помещении.
Количество батарей отопления.
Наличие в помещении других систем вентиляции.
Выбор места для монтирования наружного блока и его монтаж
Для монтажа как внешних, так и внутренних блоков не требуется специальных знаний и навыков — достаточно лишь простых знаний и навыков, которыми обладает любой мужчина, занимающийся обычными домашними работами.

Для начала нужно выбрать место для крепления снаружи — это зависит от того, где в квартире повесить кондиционер. Наиболее удобное место для навешивания снаружи — под окном, справа или слева от окна, в зависимости от положения окна на стене. В случае такого расположения внешней части кондиционера установку можно произвести самостоятельно без посторонней помощи. В случае сложной архитектуры комнаты или помещения (сложное расположение углов и окон) самостоятельная установка зачастую невозможна с точки зрения соблюдения техники безопасности персонала, и в этом случае необходимо прибегать к помощь промышленных альпинистов. Но это крайние меры для сложных типов построек; в обычных квартирах типового дома такие меры обычно не нужны. Но даже при несложной установке на данном этапе работ необходима помощь другого человека, для обеспечения безопасности, страховки и помощи в работе (вес наружного блока 20-70 кг, в зависимости от шаблона).
Наружная часть крепится на стене в выбранном положении в следующем порядке:
- к стене крепится металлический кронштейн — при выборе кронштейна необходимо учитывать вес агрегата;
- сам замок крепится к кронштейну;
Чтобы понять, как правильно повесить кондиционер (его внешнюю составляющую), необходимо соблюдать несколько условий: обеспечить строгую горизонтальность при креплении и расстояние от стены 30-40 см для обеспечения движения воздуха и возможности прокладки дорожки между блоком и стеной.
ПРОЕКТИРОВАНИЕ ИНЖЕНЕРНЫХ СЕТЕЙ
Инженерные сети любого здания — сложная система. При их проектировании любые ошибки могут привести к проблемам в последующей эксплуатации здания. Для этого необходимо получить паспорта на подключенное к сетям оборудование, архитектурно-технологическую схему здания, наличие свободных мощностей и точек подключения к инженерным сетям.
Если данных недостаточно, проектировщики компании могут самостоятельно провести дополнительные исследования и замеры, которые позволят правильно организовать будущий монтаж и прокладку инженерных сетей. На основе этой информации составляется проектная документация на этапе П или РД, в котором определяется направление, способы прокладки инженерных сетей, состав оборудования и материалов, состав технических условий и методы контроля. При проектировании трубопроводов для внутренних инженерных сетей в расчетах следует учитывать вес материала, заполняющего трубы, который создает дополнительную нагрузку на несущие конструкции здания при эксплуатации.
Инженерные системы, которые при неправильном монтаже могут привести к разрушению здания, нанести вред населению, подлежат обязательной регистрации в Ростехнадзоре. Получение лицензии (PBO) для опасного производственного объекта инициируется владельцем или организацией, которая эксплуатирует систему. Чаще всего такая необходимость возникает при прокладке технологических трубопроводов. Если внешние коммуникации прокладываются в земле траншеей или в каналах, то эти работы следует согласовывать с различными контролирующими органами, отделом подземных сооружений, собственниками прилегающих инженерных сетей, собственником земельного участка.
Принцип работы сплит-системы
Для начала разберемся, как устроена домашняя сплит-система — так будет проще понять, почему важны нюансы монтажа.
Как известно, традиционный домашний кондиционер состоит из двух блоков: один устанавливается в комнате, второй закрепляется на улице, снаружи стены, на чердаке или где-то еще..
Процесс охлаждения воздуха в помещении происходит за счет непрерывного движения фреона и его перехода из газообразного состояния в жидкое и затем наоборот. Когда хладагент находится в газообразном состоянии, он поглощает тепло и выделяет его в жидкой фазе.










Процесс конденсации, то есть переход в жидкое агрегатное состояние, происходит при высоких температуре и давлении, а кипение, при котором газ испаряется, характеризуется низкими значениями.
Процесс теплопередачи выглядит следующим образом. Компрессор забирает пар из испарителя (зона 1-1), сжимает его и передает в конденсатор (зона 2-2). В этом случае хладагент сжимается до 20-25 атм. И его температура повышается до +90 ° С. Там происходит охлаждение и конденсация.
Из кондиционера (3) хладагент, уже находящийся в жидком состоянии, возвращается в испаритель (4) через регулятор потока в условиях низкого давления. Воздух в помещении нагревает жидкость, происходит закипание и переход в пар. И так процесс повторяется бесконечно.
Переход хладагента из одного агрегатного состояния в другое происходит как в теплообменниках, так и в трубах
Чтобы процесс начался и закончился вовремя, требуется определенная длина линии, поэтому важно учитывать требования к длине, установленные разработчиками оборудования. Мы разобрались с устройством и принципом работы типового кондиционера, а теперь перейдем к правилам и нормам установки его блоков
Дренаж
Примечание: сливной шланг должен располагаться ниже линии фреона. Закрепите внутренний блок на монтажной пластине. Закрепите внутренний блок на монтажной пластине
Закрепите внутренний блок на монтажной пластине.
Подсоедините сливные шланги кондиционера.
Для строительства многие используют обычную металлопластиковую трубу d-16мм. Заводская дренажная труба развальцовывается и в нее вставляется металлопластик, заклеивая соединение сверху изолентой.

Однако внутри металлопластика со временем может образоваться грибок, который не позволит воде уйти достаточно быстро.
Поэтому другие монтажники используют в качестве дренажа только гофрированные трубы.
К тому же именно гофрированный слив позволяет подключаться напрямую к ванне без дополнительных подключений.

Кондиционеры в однокомнатную квартиру

кондиционер в проеме между стеной и окном
Многие покупатели часто ошибаются в возможности качественного охлаждения / обогрева как комнаты, так и кухни с помощью внутреннего блока. Даже если прибор размещен в коридоре, на одинаковом расстоянии от остальных комнат, холод или тепло не будут проходить через него в достаточной степени. При включении плиты или духовки прохлада моментально улетучится, а в коридоре всегда будет, наоборот, очень холодно.
Кондиционер с более высокой мощностью также не является вариантом, поскольку он часто будет работать в режиме остановки и запуска, что делает основную часть системы, компрессор, непригодной для использования.
Итак, как установить кондиционер в однокомнатной квартире и какой тип предпочесть? Здесь есть три варианта:
- установка двух сплит-систем отдельно на кухне и в спальне;
- установка мультисплит системы с одним внешним и двумя внутренними блоками;
- установка канального кондиционера (в однушке достаточно низконапорной модели).
Единственный минус первого варианта — наличие двух внешних модулей на фасаде здания. Установка канальной системы кондиционирования вполне приемлема, но обойдется намного дороже. Кроме того, придется вытягивать воздуховоды, монтировать их в фальш-антресолях или на стене, а главное, делать это можно только в квартирах с высокими потолками.
С канальным кондиционером может возникнуть такая неприятность, как распространение ароматов кухни по всей квартире, потому что система воздуховодов, подаваемая во все комнаты, будет смешивать забираемый из них воздух, а затем распределять его по всем комнатам. области. Этот кондиционер идеально подходит для нескольких комнат в квартире.

стандартная однушка в хрущевке
Если средства очень ограничены, можно установить систему перегородок на стене, но таким образом, чтобы максимально охватить все комнаты. В квартире с зонами, как показано, обычно лучший способ установить кондиционер — над дверью комнаты. Воздух будет отражаться от противоположной стены и попадать в коридор и кухню в количестве, равном 30% от общего количества воздуха, циркулирующего в квартире.
Как вариант, установите замок напротив проема. Но в этом случае в помещении останется только 30-40% охлажденного / нагретого воздуха, а 60-70% будет разнесено по остальным зонам. Такое положение кондиционера больше подходит для небольшого помещения, где изменение температуры ощущается намного быстрее и расхождение потоков лучше.
Не стоит покупать оконный кондиционер для маленькой комнаты. Даже современные модели издают заметный шум, недопустимый для спальной зоны. Для небольшого помещения лучше выбрать кондиционер меньшей мощности. Устройства до 2-2,5 кВт вешают в помещении площадью до 15 м.
Цельное окно может заменить сплит-систему на кухне. Хорошо работает на площадях до 15-18 м². Но вам придется найти специальное место для сбора брызгающего конденсата, ведь под окном может быть дорожка или зона отдыха.
Если же хозяин решит установить на кухне разделенную стенку, не рекомендуется вешать ее перед плитой, так как будет постоянное задувание пламени конфорки. Конечно, это не касается кухонных зон, оборудованных электрическими плитами.
Иногда возникает вопрос о правильном размещении кондиционера в комнате с прилегающим балконом. При установке комнатного блока отклонений от правил нет. Рекомендуется повесить наружный модуль на фасаде или сбоку от балкона / лоджии. Возможен вариант крепления внутрь, но только при отсутствии стекла. Между блоками прокладывается удлиненная дорожка, которая через балкон выходит на наклонную улицу.
[spoiler title=»Источники»]
- https://rulandia.ru/comfort/appliances/neobhodimoe-rasstoanie-mezdu-blokami-kondicionera-normy-i-pravila-montaza.html
- https://istra-gaz.ru/bezopasnost/neobhodimoe-rasstoyanie-mezhdu-blokami-konditsionera-normy-i-pravila-montazha.html
- https://VentingInfo.ru/konditsionery/trassa-dlya-konditsioner
- https://goload.ru/ustanovka-konditsionerov-rasstoyanie-mezhdu-blokami/
- https://hiconix.ru/publications/articles/kakim-mozhet-byt-rasstoyanie-mezhdu-naruzhnym-i-vnutrennim-blokami-konditsionera/
- https://stroycollege12.ru/trassa-kondicionera-po-potolku/
- https://StrojDvor.ru/kondicionirovanie/kondicionirovanie-v-kvartire/standartnyj-i-neobychnyj-montazh-kondicionera-v-komnate/
[/spoiler]

